Skip to content
ホーム
/
◆横浜市戸塚区川上町新築戸建て 全3棟
新築一戸建て
戸塚区
◆横浜市戸塚区川上町
新築戸建て 全3棟
お気に入りに追加
QR Code
https://ace18.co.jp/property/%e2%97%86%e6%88%b8%e5%a1%9a%e5%8c%ba%e5%b7%9d%e4%b8%8a%e7%94%ba%e6%96%b0%e7%af%89%e6%88%b8%e5%bb%ba%e3%81%a6%e3%80%80%e5%85%a8%ef%bc%93%e6%a3%9f/
045-342-0618
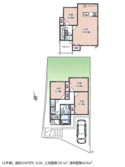
価格:5280万円
建物面積:94.65㎡
土地面積:125.1㎡
築年月:2026年4月18日
交通アクセス:JR横須賀線「東戸塚」歩19分
所在地:横浜市戸塚区川上町
間取り:4LDK
戸塚区川上町
新築戸建全3棟
■販売価格■
A号棟:5280万円
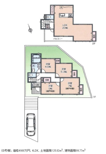
B号棟:4980万円
C号棟:4780万円
LDKは広々18帖以上
南向きの明るい家造り
2026年8月完成予定‼
同施工の完成現場もご見学いただけます。
お気軽にお問い合わせください‼
SUUMO掲載中
↑クリックでご覧いただけます↑
資料請求はこちら
お問い合わせ
お名前
*
メールアドレス
*
電話番号
*
お問い合わせ内容
*
この物件に関して問い合わせをする
リンクの挿入/編集
閉じる
リンク先 URL を入力してください
URL
リンク文字列
リンクを新しいタブで開く
または既存のコンテンツにリンク
検索
検索キーワードが指定されていません。最近の項目を表示しています。
検索または上下矢印キーを使って項目を選択してください。
キャンセル